Details
Informationen
Vermietet
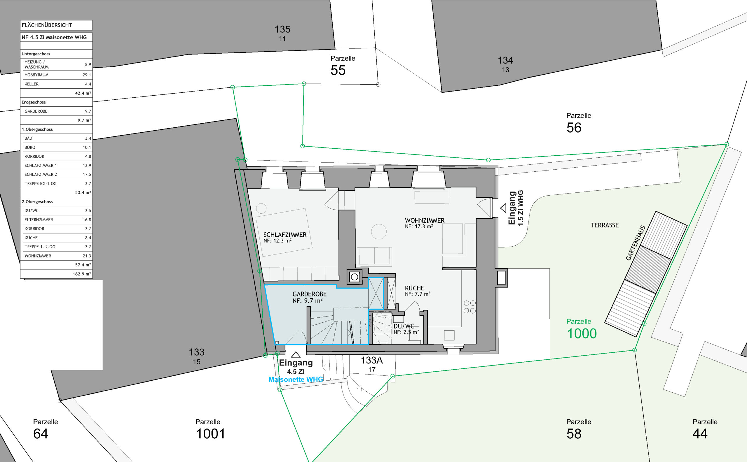
Altbau 4 1/2 Zimmer Maisonette Wohnung in einem Hausteil
Ruhig, schöne Aussicht und zentral in Samedan gelegen.
Mit einer netto Wohnfläche von ca.130 m2, zuzüglich grosszügigem Disponibel im Sousterrain Geschoss. Eigener Eingang und eigene Waschgelegenheit sowie Garten zur Mitbenutzung.
Wohnungsbeschrieb
Niveau 1:
Separater Eingang mit Garderobe.
Niveau 2:
2 Schlafzimmer, Nasszelle mit Badewanne sowie Büro- Bastel- oder Spielnische.
Niveau 3:
Wohngeschoss, offene Küche mit Wohnzimmer, 1 Schlafzimmer, Nasszelle mit Dusche











